
Overseas Property Forum
Together with our network of trusted property experts across the globe we offer a fantastic selection of properties ranging from new builds, re-sale homes, plots of land, old stone houses for renovation, investment opportunities and more. Don't see your ideal property?Just a small selection of our properties are displayed here and new properties are being added everyday, so tell us about your requirements and we'll send through matching properties.
Ask a Question?
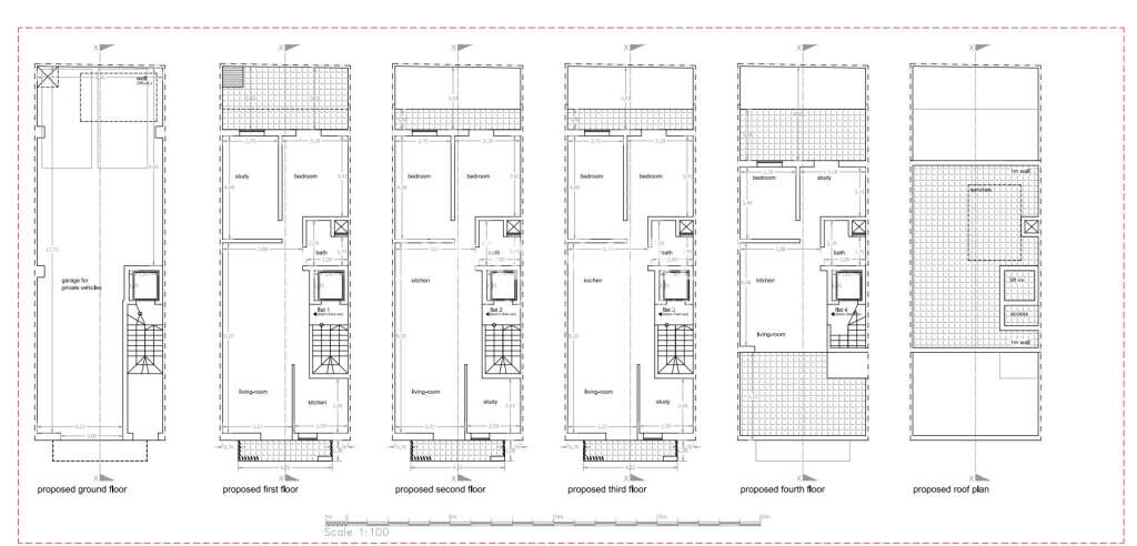
Ghajnsielem Shell form Apartment
Ghajnsielem, Gozo
3Bedroom(s)
2Bathroom(s)
1Picture(s)
123m²
Ground-floor 3-bedroom APARTMENT forming part of a new residential development with a planned communal pool, set in a tranquil area of Għajnsielem enjoying unobstructed sea and countryside views. The property comprises three spacious bedrooms (two with en-suite facilities), a main bathroom, and a practical box room.
GBP 234,483
Xlendi, Shell form Apartment
Xlendi, Gozo
2Bedroom(s)
1Bathroom(s)
3Picture(s)
99.20m²
This 4th floor APARTMENT measuring approx. total of 99 sqm, is strategically situated just a short distance from the picturesque Xlendi Bay. The layout is meticulously designed, featuring two spacious double bedrooms, an en suite shower, a main bathroom, a study, combined kitchen, living, and dining leading onto a front terrace.
GBP 233,621
Marsascala Shell form Apartment
Marsascala
2Bedroom(s)
2Bathroom(s)
7Picture(s)
90m²
Located in the highly sought-after Bella Vista area of Marsaskala, we are pleased to offer an exclusive selection of on-plan properties comprising 1- to 3-bedroom maisonettes, apartments, penthouses, and garages.Prices start from just €228,500. All units are being sold in shell form, allowing buyers the flexibility to finish the property to their own taste.
GBP 233,621
Fgura Shell form Apartment
Fgura
2Bedroom(s)
1Bathroom(s)
4Picture(s)
94m²
This contemporary third-floor apartment offers a fantastic opportunity to own a stylish home within a newly launched residential development in Fgura. Located in a peaceful yet centrally positioned area, it’s perfectly suited for first-time buyers, young families, or savvy investors looking for long-term value and strong community connectivity.
GBP 233,621
Marsalforn Finished Apartment
Marsalforn, Gozo
2Bedroom(s)
4Picture(s)
120.20m²
Set within a prestigious new smart block in a Special Designated Area (SDA), this 2-bedroom, 2-bathroom APARTMENT in Marsalforn is perfectly positioned just steps from the beach and a short stroll to lively bars, restaurants and all daily amenities.
GBP 232,759
Fgura Finished Apartment
Fgura
2Bedroom(s)
4Picture(s)
92m²
An excellent investment opportunity to choose from a selection of MAISONETTES, APARTMENTS, and PENTHOUSES within a new, up-and-coming mixed-use development. Earmarked to become a landmark in this bustling residential location, the project offers one, two, and three-bedroom properties. Units are being offered in finished excluding bathrooms and internal doors, and apertures which are also included.
GBP 232,759






