3 BED, 2 BATH Apartment IN Antibes,Antibes Alpes-Maritimes
Antibes, Alpes-Maritimes
- Bedrooms : 3
- Bathrooms : 2
- Floor Size : 84 m²
- Visits : 7
GBP 732,759
Features
Sliding windows
Double glazing
Electric shutters
Disabled access
Digicode
Videophone
Electric gate
Swimming pool
Location
Country : France
Region : Alpes-Maritimes
City : Antibes
Additional Info
Swimming Pool : 1
Property Description
ANTIBES – French Riviera – 3 bed off plan apartment – Top floor terrace – Roof top – Swimming pool – Near beaches
Antibes – French Riviera
New development – Off plan apartment – Swimming pool – Near beaches – Top floor 3/3 – Delivery Q4 2027
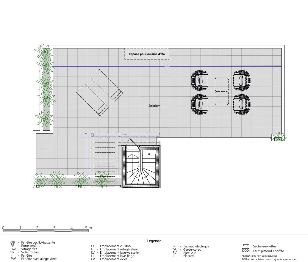
3 rooms 84M2 – Living room – 3 Bed – 2 Bath – Terrace 10M2 – Roof top 82M2 – Parking – Cellar
Key features
– location
– shops – Transports and beaches at walking distance
– swimming pool
– top floor 3/3
– terrace 10M2
– roof top terrace 82M2
– west
– parking
– cellar
– RT 2012 french housing certification
– reduced notary fees 2.5% offered

