Mosta, Finished Penthouse
Mosta
- Bedrooms : 1
- Bathrooms : 2
- Visits : 20 in 20 days
GBP 367,241
Features
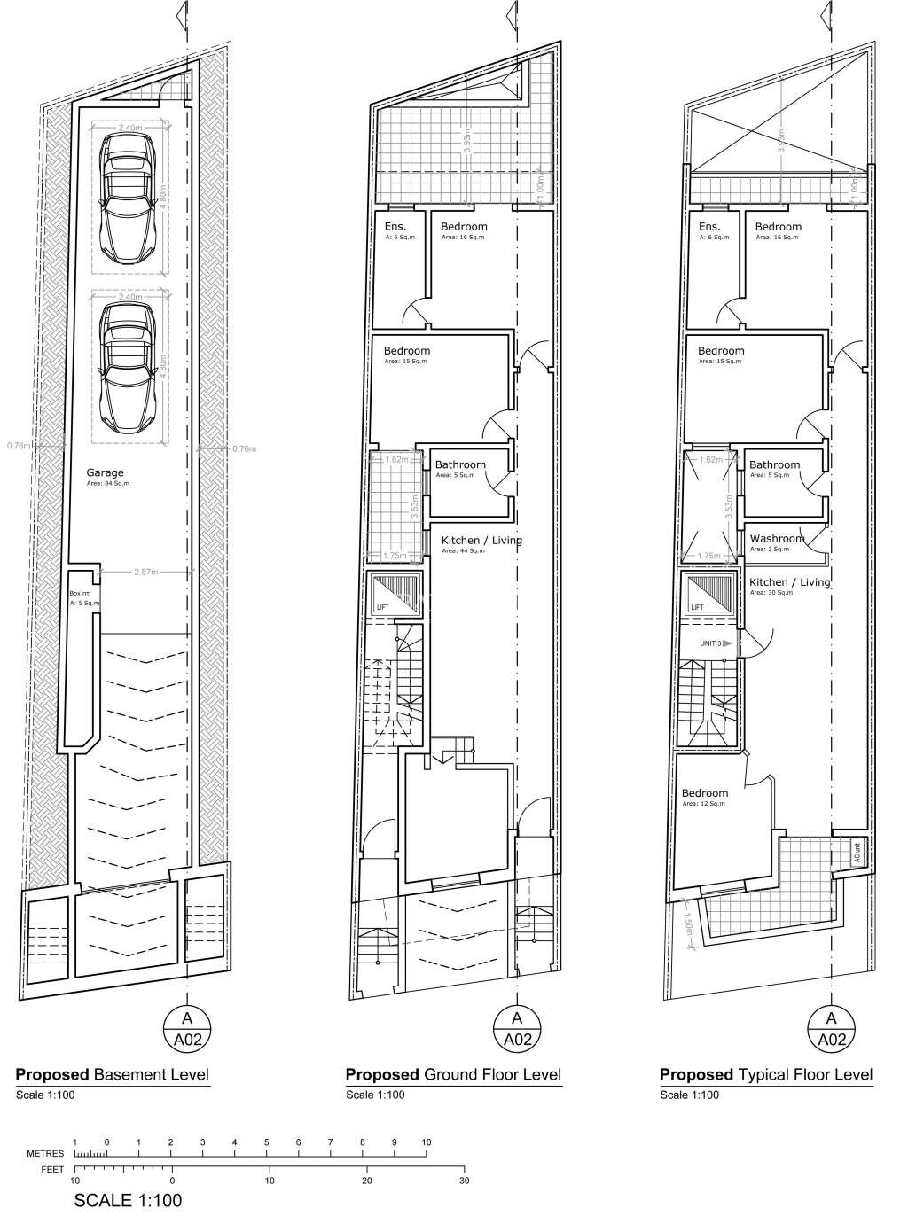
Lift: Yes
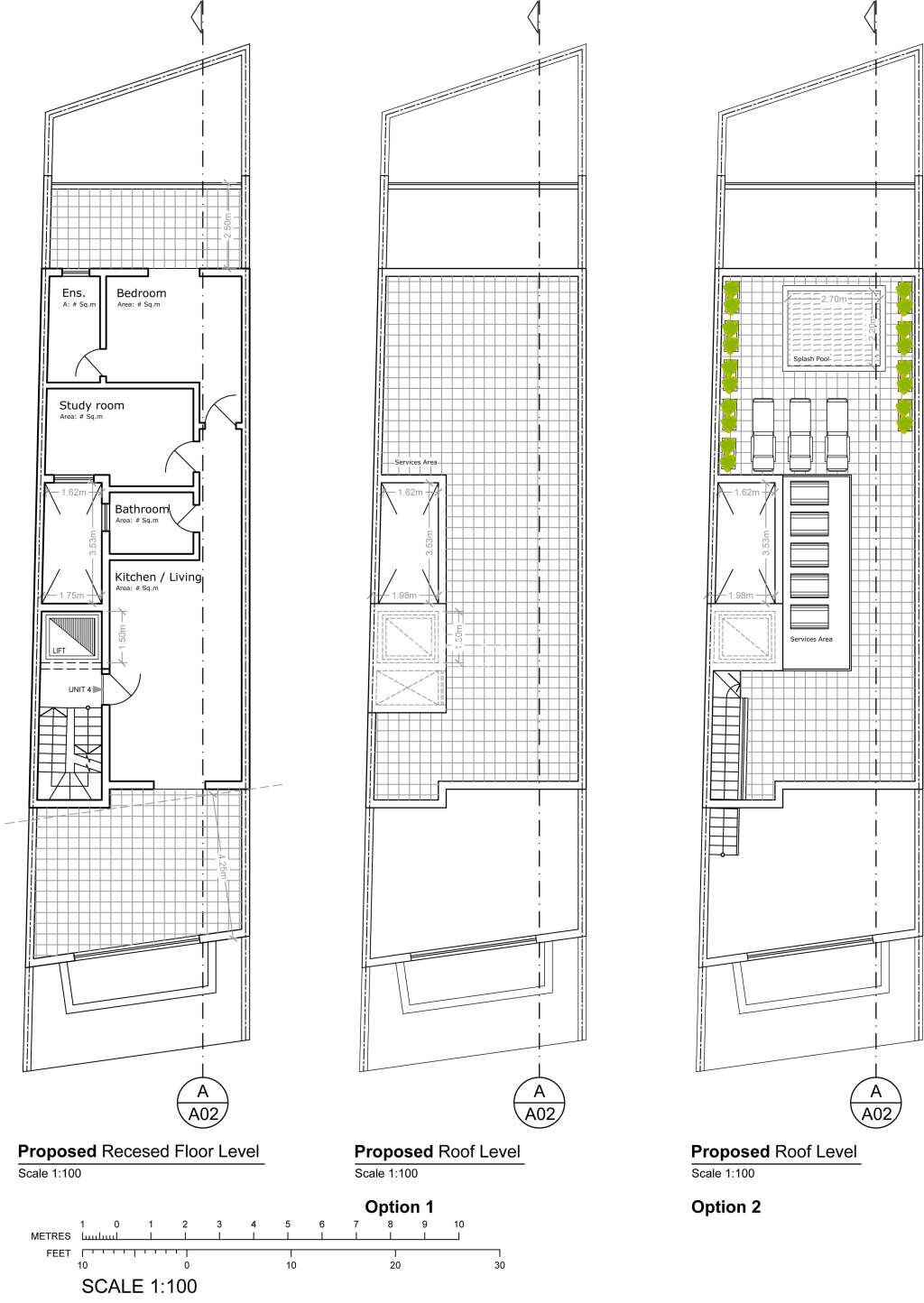
Bedroom 1 Dims: 4.00 x 3.50 mt
Dining Room Dims: 6.00 x 4.00 mt combined
Kitchen Dims: 1
Living Room Dims: 1
Swimming Pool Type: Private
Terrace (Front): Yes
Terrace (Back): Yes
Has Views: Yes
Type of View: Town views
Location
Country : Malta
City : Mosta
Property Description
A PENTHOUSE, served with lift, forming part of a small block of 5 units in Mosta within walking distance to the Mosta Dome. Layout consists of an open plan kitchen, living and dining area, large front terrace, main bathroom, main bedroom with en-suite facilities, study and a back terrace. Further complementing this property is an optional large x 6 car garage at the basement level, at an additional price. This property comes with full ownership of airspace, including connections for a splash pool, with ample space for entertaining. Property is being sold finished excluding bathrooms and internal doors. Not to be missed!

