Approved Project for Modern 2-Bed House in Benafim-Ready to Build
Loulé, Faro, 8100-350
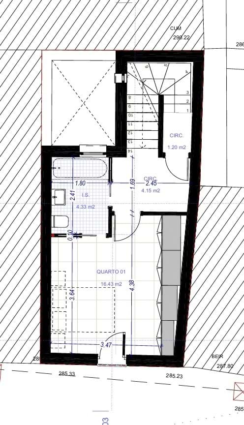
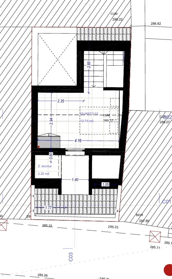
- Bedrooms : 2
- Bathrooms : 1
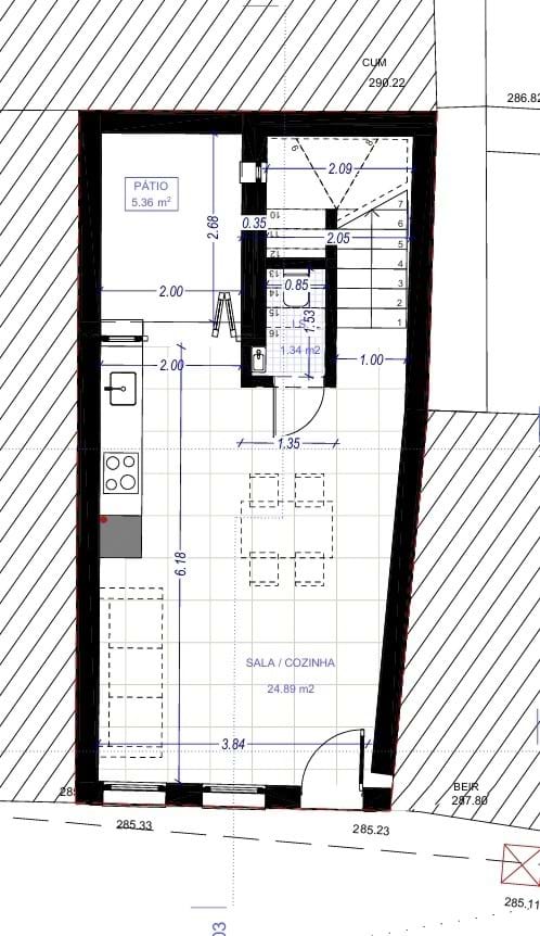
- Floor Size : 109 m²
- Visits : 33 in 28 days
An opportunity to create a stunning, contemporary home in the heart of the authentic Algarve village of Benafim. This approved project allows for the construction of a stylish, three-story, two-bedroom village house complete with a private patio, replacing a current ruin.
With all architectural plans approved and ready for the construction phase to begin, this is the perfect chance to build your dream home or a highly desirable rental property without the lengthy and uncertain planning process.
This thoughtfully designed project blends modern living with the charm of a traditional village setting. The plans maximize space and light across three floors, creating a comfortable and functional home. The ground floor is designed for open-plan living, flowing out onto a private patio—perfect for alfresco dining and enjoying the Algarve’s famous climate. The upper floors will house two bedrooms, offering a peaceful retreat.
Benafim is a picturesque and tranquil village that offers an escape from the hustle and bustle of the main coastal resorts, while still being conveniently located. Nestled in the rolling hills of the central Algarve, it is renowned for its welcoming community, local cafes, and stunning natural surroundings.
This project represents a fantastic investment, whether you are looking for a permanent residence, a holiday getaway, or a profitable rental property. With the planning permissions already secured, you can bypass bureaucracy and start building your future in the sun immediately.
Please note that this is an approved project and does not include the cost to construct the property.

