3 BED, 3 BATH House IN Las Colinas Golf,Las Colinas Golf Alicante
Las Colinas Golf, Alicante
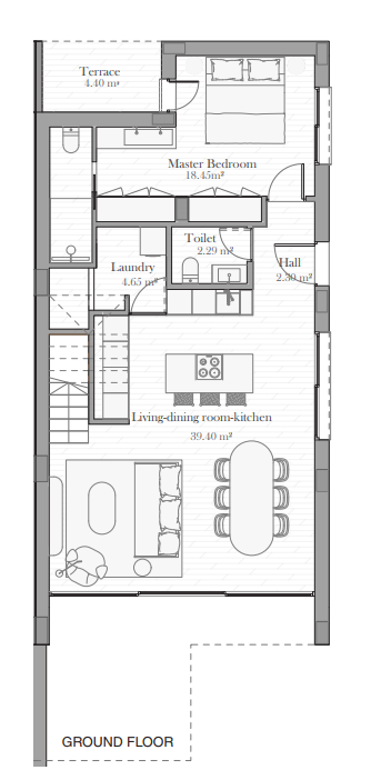
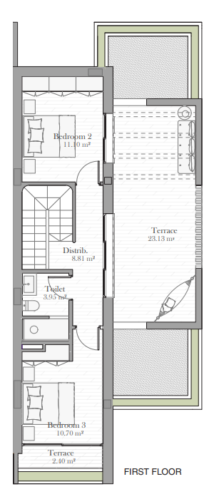
- Bedrooms : 3
- Bathrooms : 3
- Floor Size : 127 m²
- Visits : 133 in 146 days
The Larus Villas combine contemporary architectural design with the essence of Mediterranean style. Simple lines and open spaces that present a connection with the natural surroundings define these exclusive homes. Located in the exclusive Lima Community, the Larus Villas stand out for their elegance, privacy and quality. Their warm colours and noble materials accompany the landscape, while their nomadic and Mediterranean-inspired interiors invite a serene and sophisticated lifestyle. The landscaped terraces and large windows connect each space with the landscape, creating a natural transition between indoors and outdoors that enhances the feeling of well-being.
Las Colinas Golf & Country Club enjoys an exceptional climate, a unique natural environment and a complete range of services to satisfy the needs of its owners and visitors, all around a healthy Mediterranean lifestyle. Amongst its wide offer of sports, leisure, accommodation and restaurants, you will find: Las Colinas Sports & Health Club, with a gymnasium for a full day of training, a magnificent swimming pool to enjoy the sun and a wellness area to relax body and mind. A Racquet Club, for playing sports such as tennis, paddle tennis, football or basketball. A scenic trail that runs through a Mediterranean forest and can be explored by mountain bike or on foot. Its four restaurants offer a varied gastronomic offer: il Palco, based on traditional Italian cuisine; unik, international cuisine with a Mediterranean touch; and umawa, based on the flavours of Japanese, Mexican and Peruvian cuisine. A few minutes away from Las Colinas Golf & Country Club, on the first line of La Glea beach, you will find WOW Beach, a place to enjoy the sun, the beach and the sea, and where you can enjoy the best Mediterranean cuisine.
SECURITY
Las Colinas Golf & Country Club is an exclusive residential complex, with private access through a single gated entrance with 24-hour security and vehicle number plate recognition system. In addition, it also has a manned security patrol, which patrols the various sites throughout the entire community.
DOMOTICS
Home automation facilities for control of the lighting, heating and technical alarm system that provide clear advantages in the use of the dwelling. The automation enables remote management of the apartment, creation of routines that simulate the presence of people and technical alarms for water leakage and fire in the kitchen that enable rapid response to any incident.

