2 BED, 2 BATH Apartment IN Alicante,Alicante Costa Blanca
Alicante, Costa Blanca
- Bedrooms : 2
- Bathrooms : 2
- Floor Size : 82 m²
- Visits : 124 in 131 days
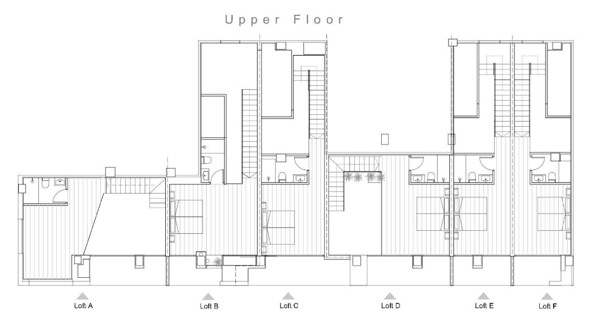
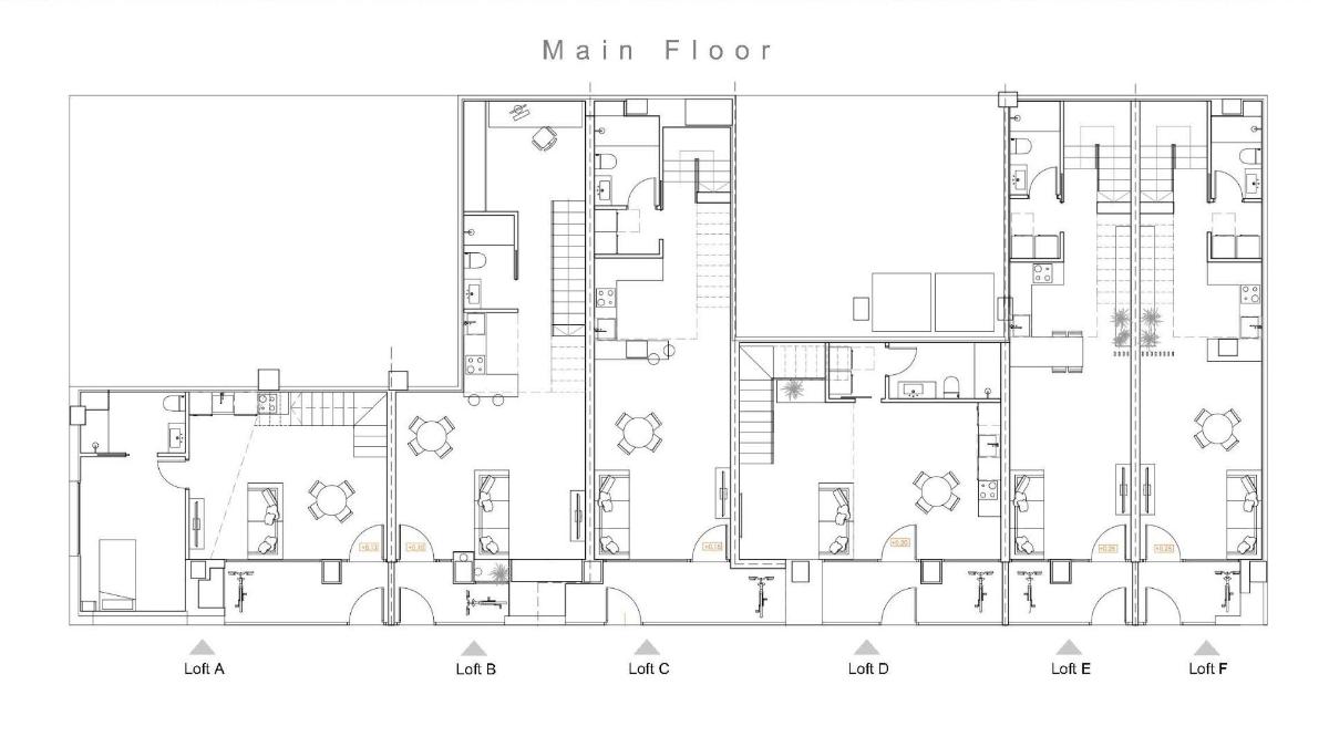
Modern Duplex Loft Apartments in the Heart of Alicante Exclusive New Development in the Benalúa Neighborhood Discover an exceptional opportunity to own a stylish duplex loft apartment in Benalúa, one of the most vibrant and well-connected districts of Alicante. This unique project transforms six unused commercial units into contemporary residential lofts, offering a modern urban lifestyle just 1 km from the Mediterranean coast. Benalúa is known for its local shops, cafés, cultural activity, and its proximity to the city center, making it a highly sought-after area for both residents and investors. Contemporary Loft-Style Design Each home has been completely redesigned to offer a fresh, open and elegant living space. The promotion includes 1 and 2 bedroom duplex lofts with 2 bathrooms, all featuring impressive double height areas that enhance natural light and provide a true loft ambiance. The upper floor hosts a bedroom and full bathroom, creating privacy and comfort. With independent access from the street and private terrace, every apartment blends modern architecture with practical living. High-quality finishes, contemporary layouts and bright interiors make these lofts a standout choice for those seeking style and functionality. Comfort and Community Amenities Residents will enjoy access to a community swimming pool located within the building, providing a relaxing and refreshing atmosphere for warm Mediterranean days. The private terraces and independent entrances add an extra layer of convenience and exclusivity. Prime Location Close to Key Points of Interest Perfectly situated for both living and investment, the development is surrounded by essential services and major attractions: Alicante Beachfront: 1 km Renfe Train Station: 0.8 km El Corte Inglés Shopping Center: 0.7 km Alicante Justice Palace: 0.5 km Alicante Airport: 12 km Alicante Marina and Port: 2 km Golf Courses (Alicante Golf): 7 km The area offers excellent public transport connections, cultural venues, green areas and easy access to the city’s beautiful beaches. A Smart Investment in Alicante’s Coastal Lifestyle Whether you are looking for a primary home, a holiday property or an investment with strong rental potential, these duplex loft apartments in Benalúa represent a unique opportunity in one of Alicante’s most promising areas. Contact us today to reserve your exclusive loft and enjoy modern living in the heart of Alicante. * Access to the swimming pool pending approval by the community when the change of use of the premises is made.

