1 Bedroom Apartment with Panoramic View over the Guadiana River
Vila Real de Santo Antonio, Faro, 8900-201
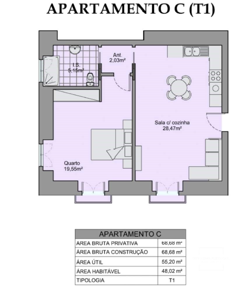
- Bedrooms : 1
- Bathrooms : 1
- Visits : 5
This elegant 1 bedroom apartment, located on the 1st floor with elevator, offers a unique residential experience in the heart of Vila Real de Santo António. Inserted in a Pombaline building of high historical value, completely renovated, it rigorously preserves the original architectural elements from the wooden floors to the vaulted ceilings, combining them with contemporary finishes that elevate comfort and sophistication.
Property Features
Stunning view over the Guadiana River, with exclusive framing
Bright living room, with fluid connection to the functional kitchen
Cozy room, ideal for rest and privacy
1st floor with elevator for added convenience
Energy class A, ensuring efficiency and thermal comfort
Preserved period elements such as solid wood doors and high ceilings
Stylish and functional environment, perfect for permanent residence or investment
Location & Conditions
Located next to the marina and the historic center, this apartment benefits from a privileged central position, with direct access to shops, services and points of interest. The urban surroundings are combined with the tranquility of a historic building carefully rehabilitated. A few minutes from the border with Spain (Ayamonte).
Surrounded by world-class golf courses such as Monte Rei Golf & Country Club.
Notary fees, registration fees and other legal charges are the responsibility of the buyer
Intermediary’s commission to be borne by the seller, as stipulated by Portuguese law
Availability of the property to be defined by mutual agreement between the parties

 
                     
                     
                     
                     
                     
                     
                    