Trichada Breeze - Brand New Three Bedroom Pool Villas with Extras - in
Cherng Talay, Phuket
- Bedrooms : 3
- Bathrooms : 3
- Floor Size : 150 Sqft
- Visits : 154 in 263 days
2 Brand new pool villas, private sale in a completely sold out estate!
Villa #1 is fully furnished (see photos) and is for sale for 27 mln THB “everything included”.
Villa #2 is offered with a built-in furniture, for a reduced 24.5 mln THB (1 mln THB discount).
Three bedroom, three bath private pool villa sold fully furnished.
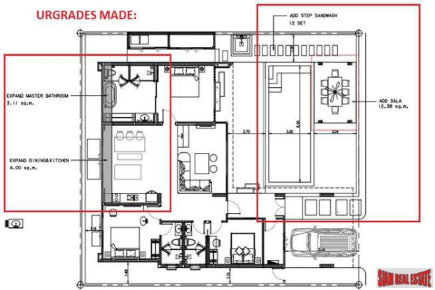
Upgrades worth 900,000 THB already included in the sale price which include an extended kitchen and dining area, additional kitchen cabinet, kitchen island and dishwasher. Extended master bathroom area + bath tub and mixer.
Private 3m x 8m swimming pool and outdoor sala 3m x 4m with ceiling fan. Separate laundry room and a compact storage room.
Freehold ownership from the developer, can be leasehold to a foreign buyer.
Estate common areas will be professionally managed by a reputable company.
All 30 villas in the estate sold within 6 months. Similar villas in comparable location are now 30+mln THB. Great villa for short and medium term rentals.
Nearby:
a€¢5 mins to Boat Avenue shopping and dining
a€¢5 mins to Layan and Laguna beaches
– * Living Room
– * Water Heater
– * Dining Room
– * Air-conditioners
– * Bathrooms Ensuite
– * Fans
– * Terrace
– * Sala
– * Inland
– * Car Port
– * Western Kitchen
– * Built in wardrobe
– * Hot water system
– * Garden
– * Laundry Room
– * Electricity
– * Pets Friendly
– * Internet / TV / Phone
– * Swimming Pool
– * Contemporary
– * Storeys
– * Secure Estate

