Mriehel, Finished Office Block - 617577
Mriehel, Malta
- Bedrooms : 0
- Bathrooms : 0
- Visits : 175 in 535 days
GBP 844,828
Features
Airconditioning Yes
Female Toilets 4
Finish Very Good
Is Property Sub-divisable? Yes
Male Toilets 4
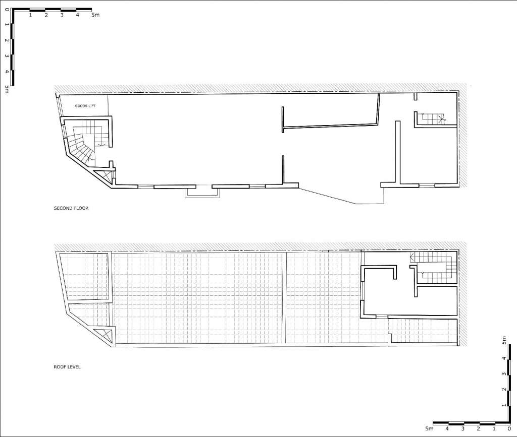
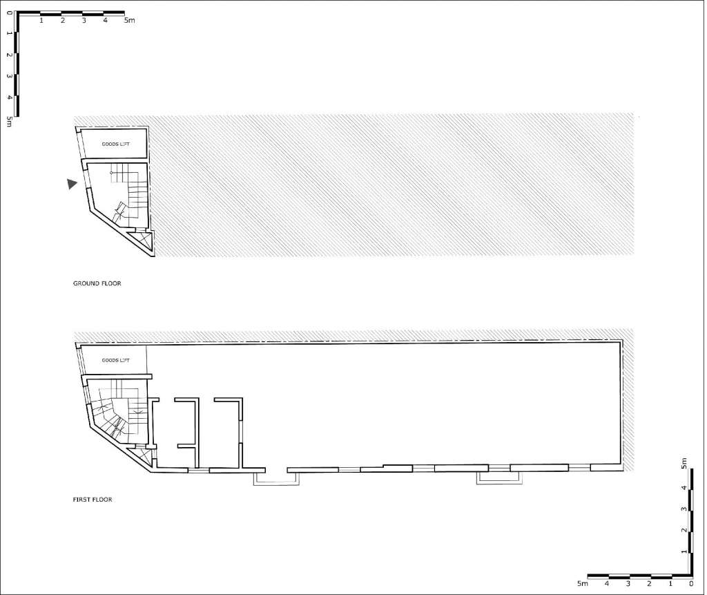
No of Floors (above street lev.) 5
Passenger Lift cap. (persons) 6
Permit Type Class 11
Shops Within walking distance
Type of layout Open plan
Location
Country : Malta
Region : Malta
City : Mriehel
Property Description
Corner OFFICE BLOCK boasting 600sq.m of office space distributed on 4 levels, ideally located in the heart of Mriehel Industrial Estate. Currently first 2 levels are leased out (2/3 yrs left). Excellent investment. Freehold. PROPERTY IS ALSO TO-LET.

