Mosta, Unconverted House of Character - 322894
Mosta, Malta
- Bedrooms : 3
- Bathrooms : 0
- Visits : 224 in 602 days
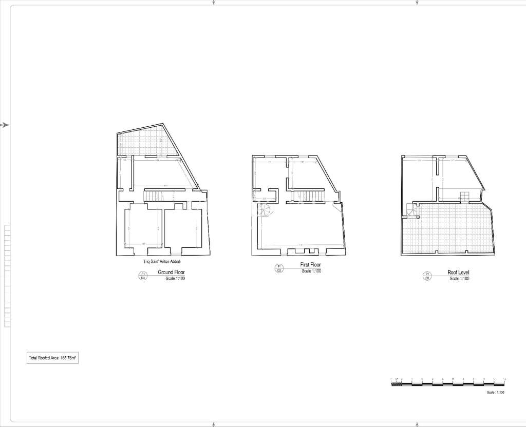
Bright and charming House of Character, steeped in over 300 years old is waiting for its owner to restore its former beauty. Immerse yourself in the authenticity of its original features, including exquisite tiles, warm wooden beams, and captivating arches that beckon for restoration.On the ground floor, a harmonious blend of kitchen, living, and dining and a main bathroom areas invites you into a space filled with possibilities, while a delightful spacious courtyard, accessed through the kitchen, promises serene moments.Ascend to the first floor, where two bedrooms await, one with an en-suite, and a generously sized living space adaptable as a second living room or additional bedrooms. A spiral staircase leads to the second floor, unveiling another double bedroom, a convenient washroom, and a captivating roof terrace boasting panoramic views of the iconic Mosta dome.Elevate your lifestyle by transforming this house of character into your dream home, a sanctuary where history meets modern living. Don’t miss the opportunity to restore and relish in the timeless beauty that awaits within these historic walls. Freehold!

