4-Bedroom apartment with pool and garage in gated community, Olhão
Olhão, Faro, 8700-203
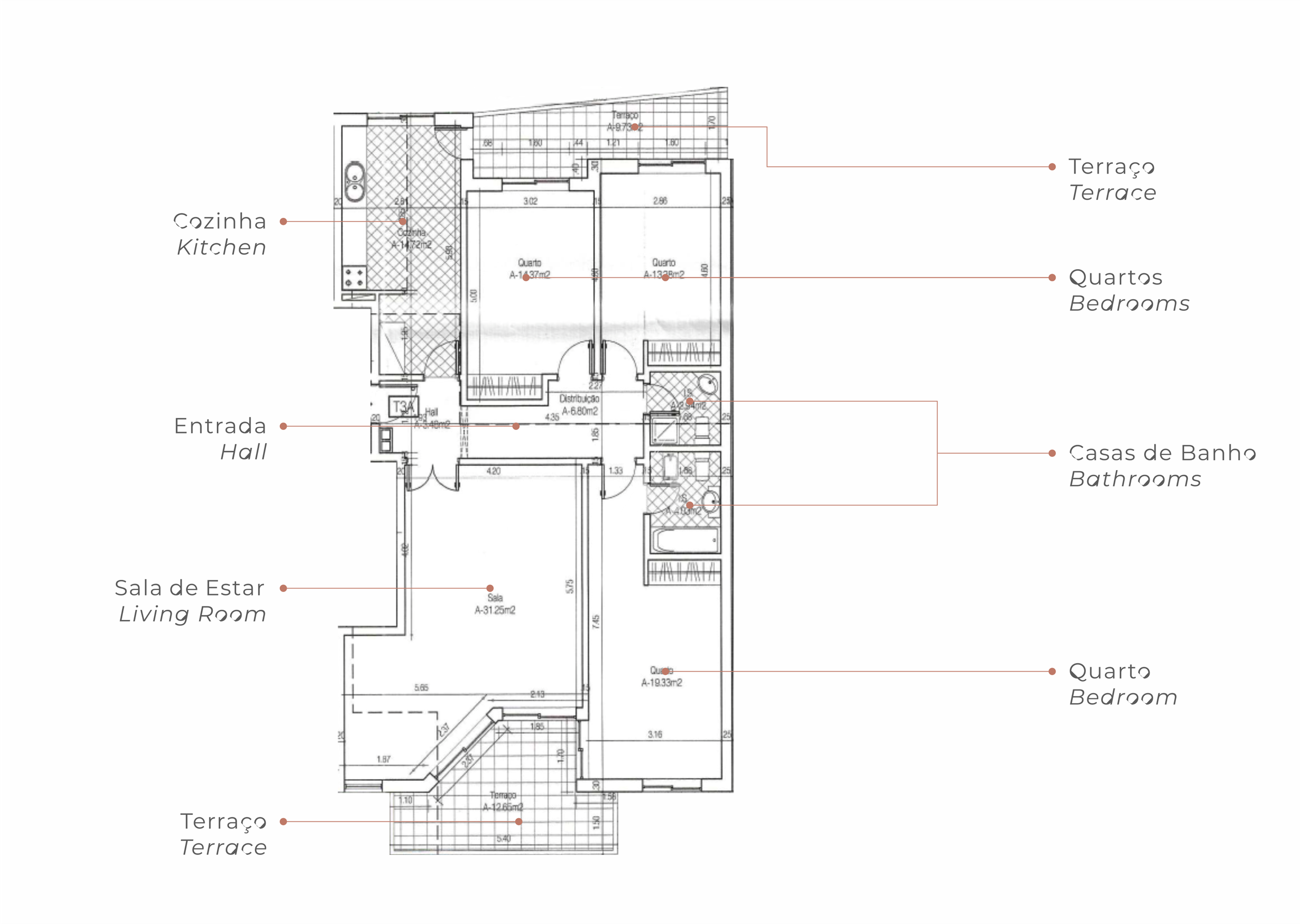
- Bedrooms : 4
- Bathrooms : 3
- Floor Size : 128 m²
- Visits : 252 in 660 days
GBP 435,940
Features
Furnished
Closed condominium
Elevator
Garage
Swimming pool
Energy Certificate: B-
Location
Country : Portugal
Region : Faro
City : Olhão
Postcode : 8700-203
Additional Info
Video : https://youtu.be/x6wCMJRkMsw
Condition : New
Elevator : Yes
Assisted Living : No
Swimming Pool : Yes
Garages : 1
Off Road Parking : 1
Property Description
New gated condominium in Olhão, in the Peares area, close to all amenities and just a few minutes from the ferry docks to the Armona, Culatra and Farol Islands. It is also close to Olhão marina and its traditional markets.
The four-bedroom apartments feature four spacious bedrooms, three bathrooms, a living and dining room with access to the terrace, a fully fitted kitchen and balconies. They also include a private parking space and a storage room in the basement.
This prime location ensures proximity to public transport, supermarkets, health, wellness and leisure services.
An excellent choice for either permanent residence or investment.
Book your visit with Live In Holidays.

