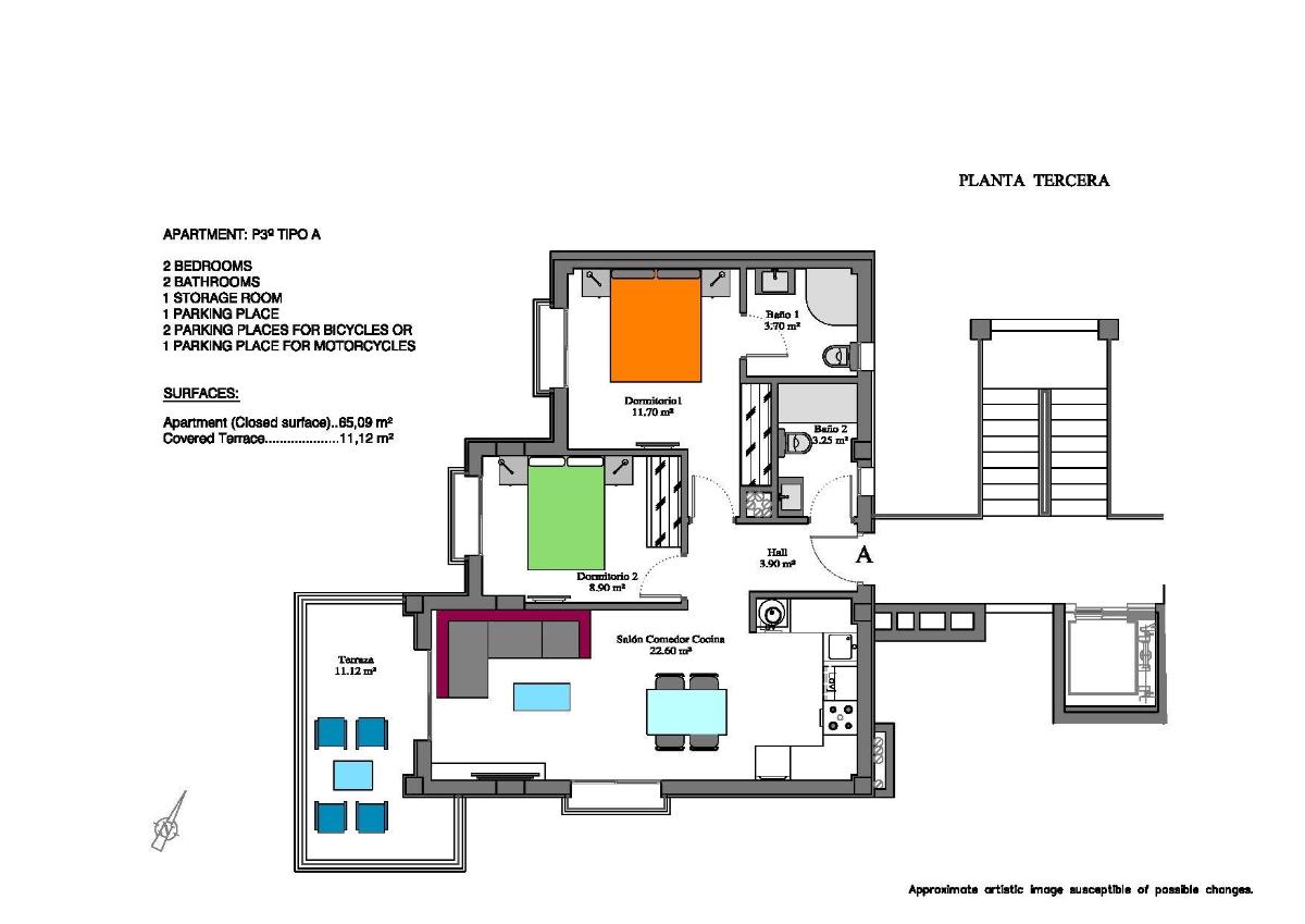
2 BED, 2 BATH Apartment IN Las Filipinas,Las Filipinas Alicante
Las Filipinas, Alicante
- Bedrooms : 2
- Bathrooms : 2
- Floor Size : 65 m²
- Visits : 280 in 672 days
GBP 254,310
Features
Elevator/lift
Community swimming pool
Gated
Terrace: 11 msq.
Parking - space
Beach: 4500 meters
Near golf / golf resort property
Near schools
Near commercial center
Near bus route
Location: coastal, urbanisation
Useable build space: 55 msq.
Air conditioning: yes, pre-installed
Storage / trastero
Double bedrooms: 2
Location
Country : Spain
Region : Alicante
City : Las Filipinas
Additional Info
Swimming Pool : 1
Property Description
Cozy apartment with two bedrooms and two bathrooms The residence is located in a very quiet and safe area and is fully equipped (it has all possible comforts). In the immediate vicinity you will find for example 4 magnificent golf courses, a large shopping area (la Zenia Boulevard), several beaches, supermarkets, bars and restaurants, etc. It is a luxury residence, all the apartments and houses are spacious and comfortable. The residence has private parking and is equipped with lifts. In the complex there is a communal swimming pool (large swimming pool, children’s pool and jacuzzi with hot water). Also a playground and several green spaces. In short: the ideal place to rest and enjoy the region, to live in Spain.

