Marsascala, Shell form Apartment - 425956
Marsascala, Malta
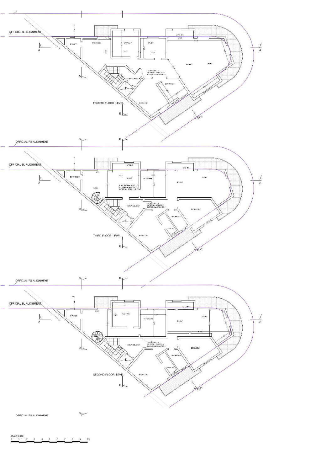
- Bedrooms : 3
- Bathrooms : 0
- Visits : 266 in 602 days
GBP 228,448
Features
Balconies (Back) 1
Balconies (Front) 1
Balconies (Side) 1
Bedroom 1 Dims 3.70 x 3.40 mt
Bedroom 2 Dims 3.40 x 3.40 mt
Bedroom 3 Dims 3.00 x 4.00 mt
Dining Room Dims 7.50 x 5.00 mt
External Area 19.30 sq mt
Finish Good
Kitchen Dims 7.50 x 5.00 mt
Lift: Yes
Living Room Dims 7.50 x 5.00 mt
No of Bathrooms 2
No of Bedrooms 3
Shops Close by
Study Dimensions 1
Total Area 162.00 sq mt
Location
Country : Malta
Region : Malta
City : Marsascala
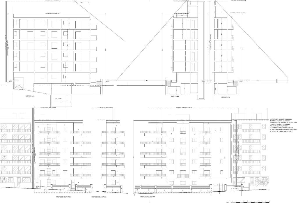
Property Description
Set in a tranquil area of Marsaskala, just a walk away from the lifestyle and tranquillity of the promenade. Up for sale is a CORNER APARTMENT being sold in a shell form state. Property comprises of a welcoming reception area upon entering, a spacious open plan on a corner filled with natural light. Three double bedrooms, the main having en suite facilities as well as balcony, the other benefiting of windows to the street. A study and a main bathroom. Property is being sold in a shell form state and it’s projected completion is mid 2024.

