Attard, Finished Office - 425571
Attard, Malta
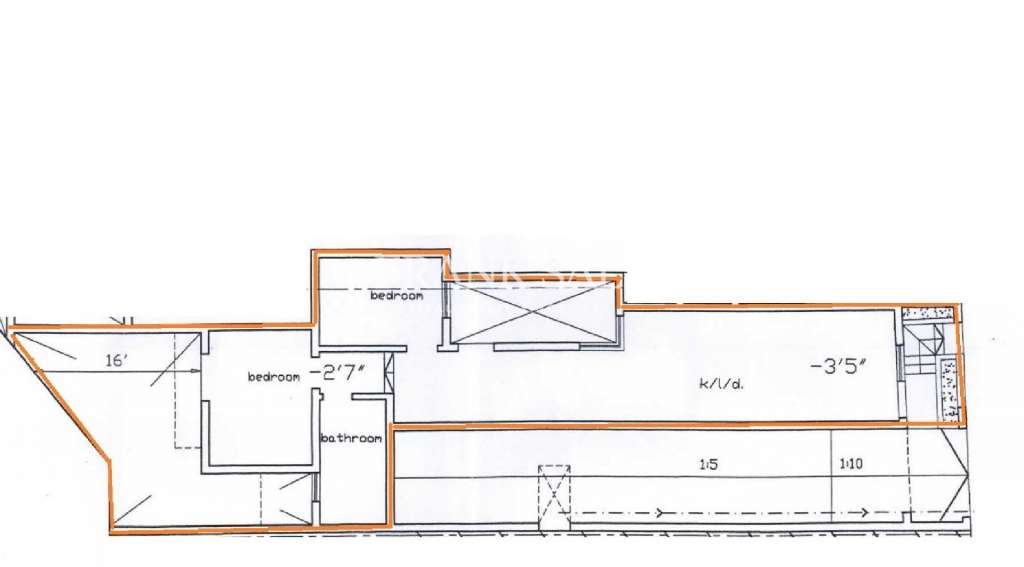
- Bedrooms : 2
- Bathrooms : 0
- Visits : 273 in 636 days
GBP 211,207
Features
Airconditioning Yes
Female Toilets 1
Finish Very Good
Male Toilets 1
No of Floors (above street lev.) 1
Permit Type to be applied for
Shops Close by
Type of layout Closed rooms
Location
Country : Malta
Region : Malta
City : Attard
Property Description
Excellent opportunity to acquire a ground-floor property that is ideal to be changed into an Office within a superb location, with ample passing trade and easy to be found. This property is currently a recently built and finished ground-floor maisonette and is being sold subject to Planning Permits. Layout in the form of an open plan area ideal as a reception/waiting room, wide hall ideal for large archive furniture, bathroom, two rooms ideal as individual offices, and a large back yard that can also be utilised. Further complimenting this property is an optional underlying one car garage. Excellent value PROPERTY IS ALSO TO-LET.

