Victoria, Shell form Maisonette - 114790
Victoria, Gozo
- Bedrooms : 2
- Bathrooms : 0
- Visits : 286 in 278 days
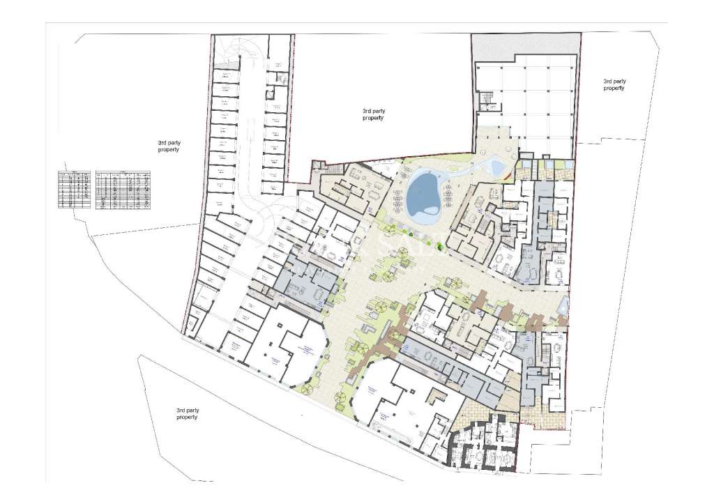
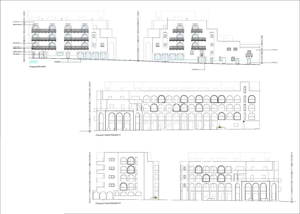
Located just minutes from all conveniences yet tucked away in one of the most idyllic neighborhoods in the heart of Victoria, Gozo, this COMPLEX features an iconic mixed-use-complex design granting its authenticity to future owners. Spread over 5 levels, this development offers a selection of one to two- or three-bedroom units, some of which look out onto spacious balconies and/or terraces. This development has a total of 149 residences, enjoying natural lighting conditions. It includes a 500 sqm private communal pool area as well as its own 1129 sqm of landscaped public pedestrian internal road. It also features over 150 car spaces and basement parking garages, a commodity much sought after in the city. Development is currently under construction; some units are offered on in shell form state and some units are offered on plan up to shell form with high end external finishes! A unique complex! Get in touch now for more information!

