Victoria, Shell form Maisonette - 114795
Victoria, Gozo
- Bedrooms : 1
- Bathrooms : 0
- Visits : 269 in 247 days
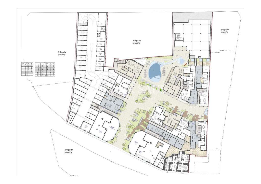
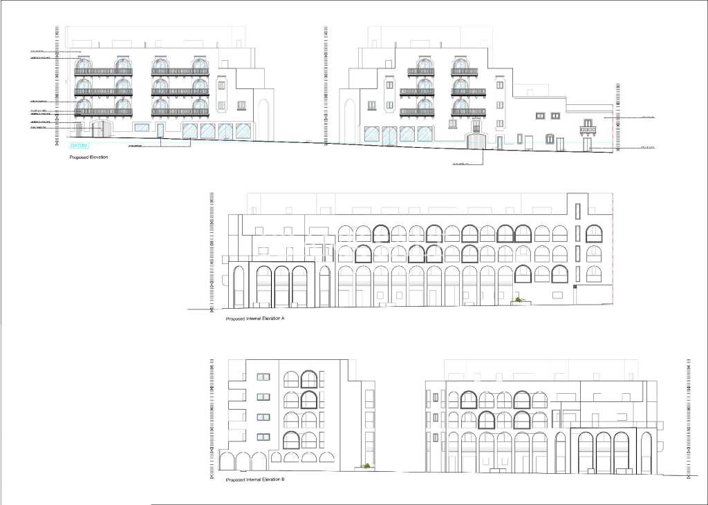
Located just minutes from all conveniences yet tucked away in one of the most idyllic neighborhoods in the heart of Victoria, Gozo, this project features an iconic mixed-use-complex design granting its authenticity to future owners.Spread over 5 levels, this development offers a selection of 1/2/3-bedroom MAISONETTES, some of which enjoys yards and some with private Jacuzzi. This development has a total of 149 residences, enjoying natural lighting conditions. It includes a 500 sqm private communal pool area as well as its own 1129 sqm of landscaped public pedestrian internal road. Development is being offered on plan in shell form, including high end external finishes! The complex also features over 150 car spaces and basement parking garages, a commodity much sought after in the city. A unique complex! Get in touch now for more information!

