Victoria, Shell form Penthouse - 114435
Victoria, Gozo
- Bedrooms : 3
- Bathrooms : 0
- Visits : 233 in 248 days
GBP 303,448
Features
Balconies (Back) 1
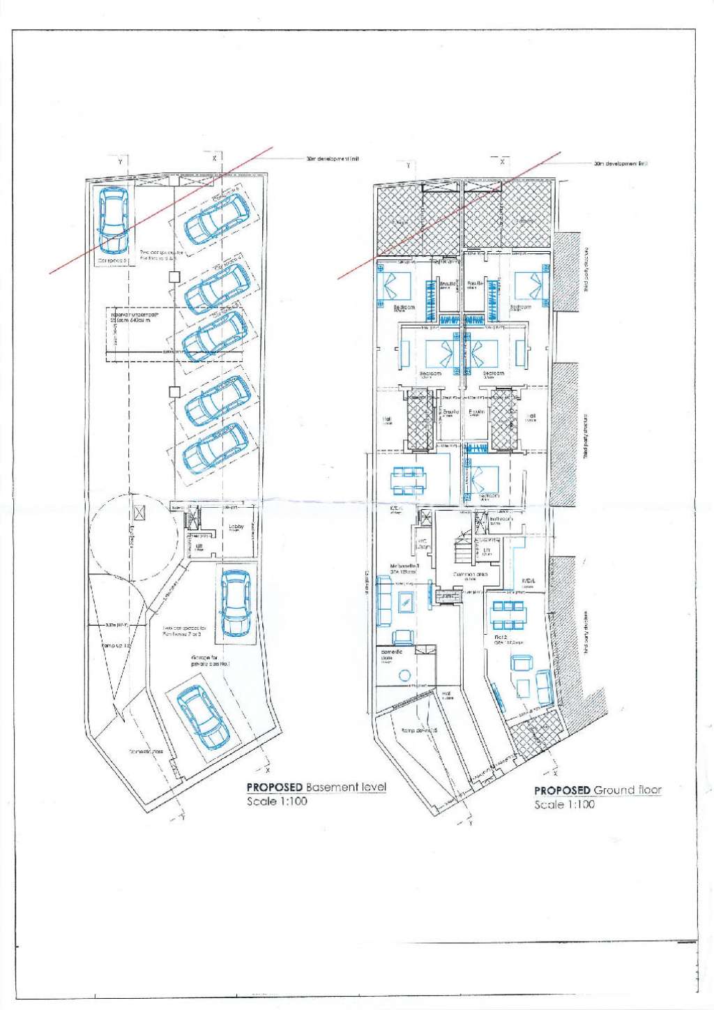
Bedroom 1 Dims 3.40 x 3.20 mt
Bedroom 2 Dims 3.60 x 3.66 mt
Bedroom 3 Dims 4.15 x 3.66 mt
Dining Room Dims 5.37 x 5.89 mt combined
Finish Fair
Has Views Good Country views
Kitchen Dims 5.37 x 5.89 mt combined
Lift: Yes
Living Room Dims 5.37 x 5.89 mt combined
No of Bathrooms 1
No of Bedrooms 3
Shops Within walking distance
Showers No of 2
Terrace (Front) Yes
Total Area 119.70 sq mt
Type of View Country views
Location
Country : Malta
Region : Gozo
City : Victoria
Property Description
A new BLOCK of MAISONETTES, APARTMENTS, PENTHOUSES & CAR SPACES, being sold on plan in shell form and situated on the outskirts of Victoria looking onto unobstructed country views. Layout consists of an open plan, living kitchen and dining room leading to the front balcony or terrace which enjoys the views. Three double bedrooms, main bathroom and two en-suite bathrooms, back yard or balcony. Optional garages at basement level. Great opportunity for first time buyers!

