semi-detached portion-1421-MS6219-1421
Massa, Toscana
- Bedrooms : 3
- Bathrooms : 0
- Floor Size : 187 m²
- Visits : 369 in 1478 days
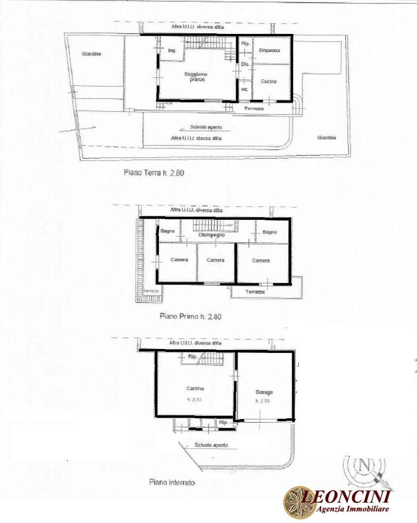
Massa in Via dell’Acqua, we offer a portion of a two-family building in auction on two floors above ground and a basement, composed on the ground floor of entrance, living-dining room, kitchen, hallway, toilet, closet, terrace over exclusive garden; First floor consisting of three bedrooms, two bathrooms, hallway and terrace; Basement floor consisting of cellar, utility room and garage room currently used in a different way.
In the process of Liberation
Expert opinion value 465.662,00
Purchase offer with minimum deposit equal to 10% of the proposed price
PROPERTY SUBJECT TO EXECUTIVE PROCEDURE
The property is assigned by the Court through a judicial real estate auction and the indicated price refers to the minimum offer; this announcement is not intended to replace the official documents relating to the judicial sale. The LEONCINI Real Estate Agency offers a global assistance and consultancy service for those who want to buy a property at auction, from a bankruptcy or on sale and excerpt. A consultancy that accompanies the customer throughout the journey: from monitoring to selecting the desired property from the awarding to the delivery of the keys, including any assistance in obtaining a 100% mortgage.
CONSULTANCY IS FREE IN CASE OF FAILURE TO AWARD THE PROPERTY.
LEONCINI Real Estate Agency Via A Moro 2 Villafranca in Lunigiana MS mediante modulo richiesta informazioni – mediante modulo richiesta informazioni www.immobiliareleoncini.it
Energy Class: N.C. KWh/mq
Rooms: 6
Bedrooms: 3
Bathrooms: 3
Area: 187 sq. m
Terrace/Balcony: Yes
Lift: No
Air Conditioning: Assente
Alarm System: No
Garden: Private
Concierge: No
Our Reference: 1421-MS6219-1421

