A476 semi-detached apartment-A476-1421
Filattiera, Toscana
- Bedrooms : 4
- Bathrooms : 0
- Floor Size : 165 m²
- Visits : 328 in 1478 days
GBP 107,759
Location
Country : Italy
Region : Toscana
City : Filattiera
Property Description
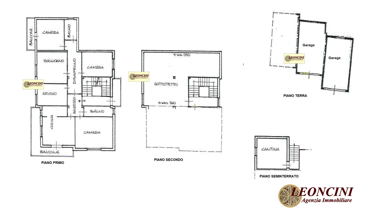
A476 Filattiera. Apartment in a two-family house, excellent exposure, first floor without elevator, composed of entrance corridor, kitchen, living room, four bedrooms, two bathrooms and two balconies. Attic room used as a warehouse. Basement with large cellar and two garage rooms on the ground floor. The private garden completes the property. Distance from the Pontremoli motorway exit 4 km. Aulla 15 km.
Energy Class: G KWh/mq
Rooms: 11
Bedrooms: 4
Bathrooms: 2
Area: 165 sq. m
Terrace/Balcony: No
Lift: No
Air Conditioning:
Alarm System: No
Garden: Private
Concierge: No
Our Reference: A476-1421

