FOR SALE FARMHOUSE WITH ALTILIA LAND (CS)-V-25-1587
Cosenza, Calabria
- Bedrooms : 4
- Bathrooms : 0
- Floor Size : 790 m²
- Visits : 427 in 1484 days
GBP 306,897
Location
Country : Italy
Region : Calabria
Sub-Region : Cosenza
Property Description
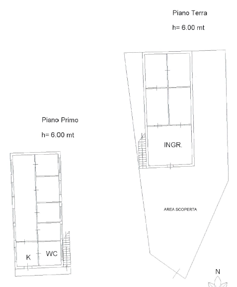
CASA INDIPENDETE CON TERRENO
Energy Class: G KWh/mq
Rooms: 7
Bedrooms: 4
Bathrooms: 3
Area: 790 sq. m
Terrace/Balcony: No
Lift: No
Air Conditioning:
Alarm System: No
Garden: Private
Concierge: No
Our Reference: V-25-1587

