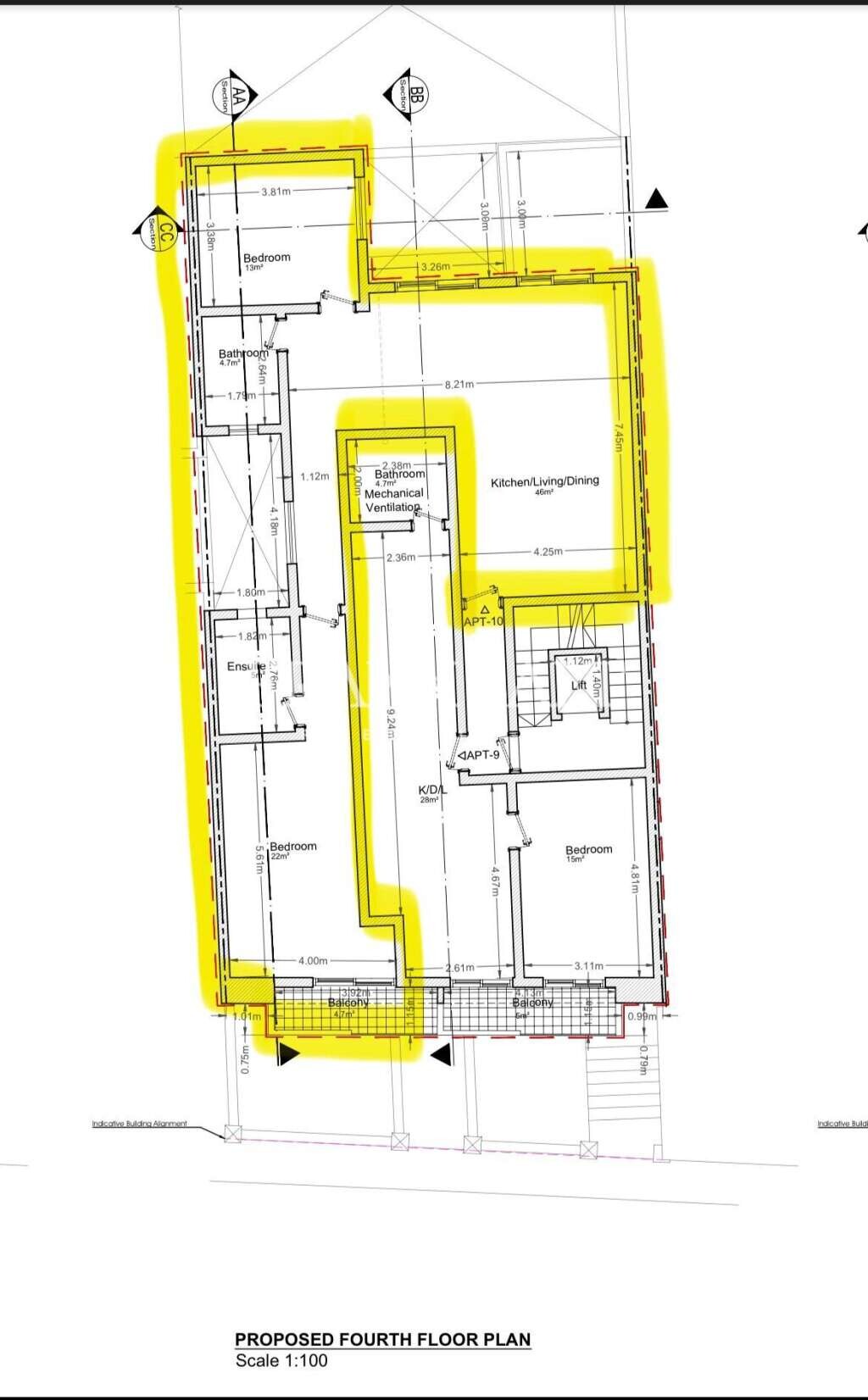
Sliema Finished Penthouse
Sliema
2Bedroom(s)
3Bathroom(s)
7Picture(s)
140m²
Stunning Duplex Penthouse in Prime Sliema Location. Located just off the Sliema promenade, this brand-new duplex penthouse offers a rare blend of modern luxury and historic charm. Nestled within one of the most sought-after areas, this residence is within walking distance of top restaurants, cafés, shops, and the picturesque waterfront.
GBP 646,552
Tarxien n/a Site (Residential)
Tarxien
8Picture(s)
156m²
Hard to come by, SITE, situated close to megalithic temples and set on a 156 SQM plot and measuring approx. 6.25m by 25.15m. The current terraced house features a combined formal sitting and dining area, main bathroom, a kitchen and breakfast room that opens onto the spacious backyard and garden.
GBP 724,138
Tarxien Furnished Terraced House
Tarxien
3Bedroom(s)
1Bathroom(s)
10Picture(s)
156m²
Hard to come by, a TERRACED HOUSE, situated close to megalithic temples and set on a plot of circa 156 SQM. This charming home features a combined formal sitting and dining area with a front balcony, main bathroom, a kitchen and breakfast room that opens onto the spacious backyard and garden, and a traditional layout throughout.
GBP 724,138
Siggiewi Finished Maisonette
Siggiewi
3Bedroom(s)
1Bathroom(s)
7Picture(s)
118m²
Slightly elevated Ground Floor MAISONETTE in a very pleasant quiet location and forming part of a small block. As you enter there is a separate living room which then leads to a good size combined kitchen and dining room, family bathroom, three bedrooms, main with walk -in and access to the back yard.
GBP 375,862
Ta' Xbiex Finished Maisonette
Ta\' Xbiex
2Bedroom(s)
2Bathroom(s)
7Picture(s)
220m²
Super Duplex style MAISONETTE in a very quiet cul de sac forming part of a new modern block. The property comprises of an entrance hall with door to private front yard, bathroom and steps down to a lower level where you find a large room currently used as a second living/guest bedroom.
GBP 754,310
San Gwann, Finished Apartment
San Gwann
2Bedroom(s)
1Bathroom(s)
4Picture(s)
A two-bedroom, two-bathroom APARTMENT on the fourth floor located in the heart of San Gwann. This property is an ideal choice for families, professionals, or as a rental investment. The open-plan layout maximizes natural light, creating a warm and welcoming atmosphere. Property will be sold finished excluding bathrooms and doors.
GBP 245,690






