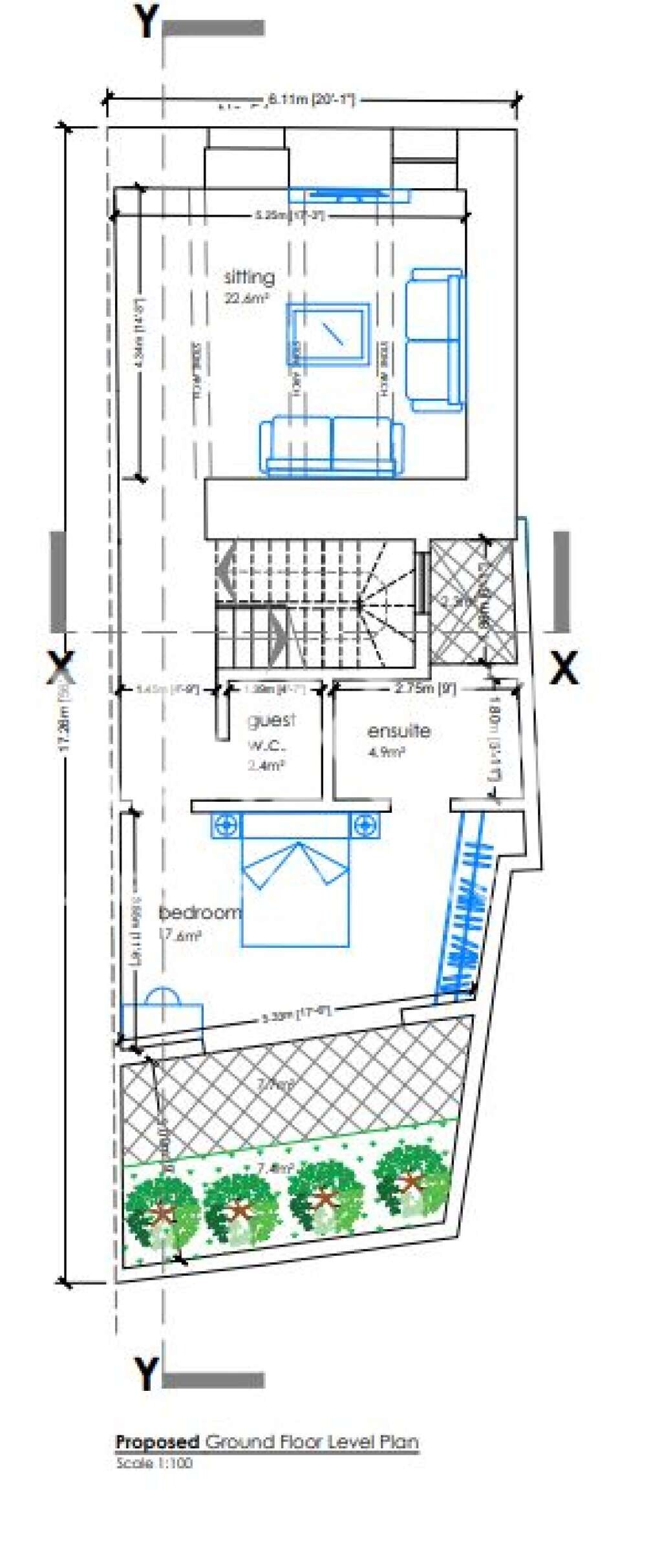
Munxar, Shell Form Terraced House
Munxar, Gozo
- Bedrooms : 3
- Bathrooms : 0
- Plot Size : 105 m²
- Visits : 21 in 20 days
Discover your dream home in the serene village of Munxar. This brand-new TERRACED HOUSE, currently available off-plan and in shell form, is set to be completed by the end of 2024, constructed entirely in timeless limestone with good country views from the upper floors. Boasting a generous footprint of over 100 square meters, this property offers a thoughtfully designed layout. You are welcomed into a nice hall and a formal sitting room, a convenient separate WC, and a double bedroom with en-suite facilities, leading to a charming backyard. Upstairs on the first floor, an expansive kitchen and dining area opens onto a balcony, a washroom and another double bedroom with en-suite facilities provide comfort and convenience. On the second floor, there is the third double bedroom with en-suite and a delightful terrace complete with a private plunge pool, perfect for entertaining. This exceptional house serves as both an ideal family home and a promising rental investment opportunity. Don’t miss out – call now for more details!

